
南長野(神明・広徳地区)の閑静な住宅街の一角に建つ、瓦屋根の南欧風建物に利用者様が暮らしています。南欧風建物の庭では、道行く人にも楽しんでいただける様、四季折々のさまざまな花で彩られます。
春には南長野運動公園へお花見に出かけ、秋には川中島古戦場の花火を楽しむ事ができます。
施設のご案内
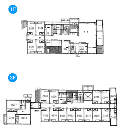
フロアガイド

| 建物 | 木造2階建 エレベーター |
|---|---|
| 専用居室 | 全室個室(22室)・8帖/洗面(給湯・給水)/収納/ エアコン/ 緊急呼出装置/ TV配線 |
| 定員 | 22名 |
ご利用できる方
65歳以上の認知症高齢者(要支援2以上)で、共同生活に支障のない方。
サポート体制
24時間介護スタッフが常駐し、緊急時にも素早く対応します。
専属看護師が勤務しており、オンコール対応も致します。
提携医療機関との連携により、健康診断、定期受診を行い、体調不良時や急変時の受診・往診も対応できます。また、ご入居者の状態により外来受診が困難な場合には、居室まで訪問診療を行うなど、健康管理体制を整えています。
概要
| 所在地 | 〒388-8020 長野県長野市神明181 |
|---|---|
| 電話番号 | 026-217-1220 |
| 種別 | ケア付き有料老人ホーム 特定施設入居者生活介護事業所 事業所番号:2070104274 |
| 設立 | 平成19年4月 |
| 運営 | 有限会社ヒューマンヘリテージ |
交通・アクセス
| 施設名 | ヒューマンヘリテージ川中島 |
|---|---|
| 所在地 | 〒388-8020 長野県長野市神明181 |
| 電話番号 | 026-217-1220 |
